【南城市チネンブルーを望む】リビングからは南城市の美しい海。夜には海に一本の月の道が浮かび、朝には太平洋から登る太陽の光に包まれます。ニライカナイ橋の高架下に位置し、敷地面積793坪、建物延べ面積58坪、1FLDKの広さは約29帖とゆったりとした空間です。・宿泊業許可取得済み・ホテル事業や保養施設等にいかがでしょうか。(現在は宿泊施設として運用中)お問い合わせお待ちしております。
物件情報
| 価格 | 3億2,000万円 | 階数 | 2階建て |
|---|---|---|---|
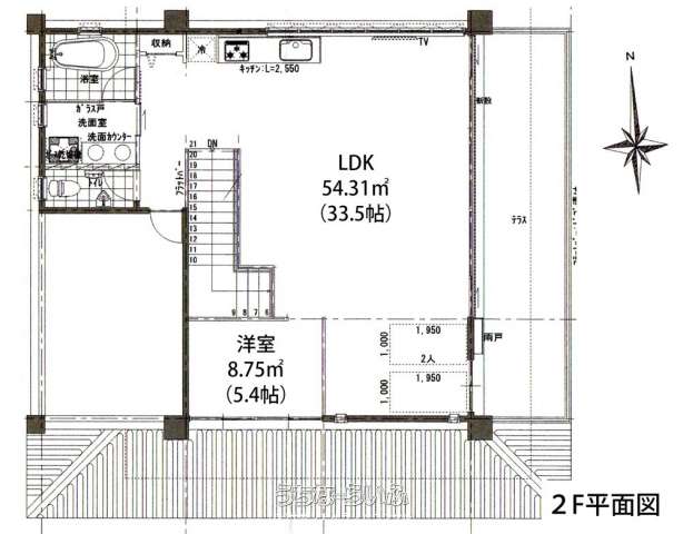
| 間取り | 3LDK ( 洋7.8 洋6.5 洋5.4 ※LDK各階1F:29.6帖、2F:33.5帖・1F個室それぞれにトイレ・シャワー有り) | ||
| 建物面積 | 192.07m² / 58.1坪 | 土地面積 | 2623m² / 793.46坪 |
| 私道負担 | 無し | 築年月 | 2020年04月(築5年) |
| 駐車場 | 10台 | 地目 | 宅地 |
| 引き渡し | 相談 | 接道方向 / 道路幅員 | - |
| 土地権利 | 所有 | 都市計画 | 非線引 |
| 用途地域 | 無指定 | 建物構造 | RC(鉄筋コンクリート造) |
| 取引態様 | 仲介 | 所在地 | 南城市知念字知念 地図 |
| 建ぺい率 / 容積率 | 40% / 200% | 交通 | 【バス停】県営知念団地前: 徒歩約1分 |
| 価格備考 | 売買金額のほかに、仲介手数料・印紙代・登記費用・固定資産税日割り分・火災保険料等が発生致します。 | ||
| 更新日 | 2025/12/17 | 公開期限 | 2025/12/30 |
この物件の設備・条件
| キッチン | IHコンロ 、 システムキッチン 、 アイランド型キッチン |
|---|---|
| バス・トイレ | 浴槽 、 トイレ2ヶ所 、 温水洗浄便座 |
| 室内設備 | 室内洗濯機置き場 |
| 構造 | デザイナーズ |
| その他条件 | 海が見える 、 眺望良し |
物件備考
| 備考 | ■宿泊業許可取得済み・ホテル事業や保養施設等にいかがでしょうか。 (現在は宿泊施設として運用中) 内覧の際は事前調整が必要です。 ■現況: 空き家 |
|---|
【うちなーらいふ】は、より正確な情報の提供を心がけておりますが、物件情報に誤りがある場合は、ご連絡をお願い致します。
ご報告いただいた内容につきましては、掲載提供元である不動産会社に直接送信させていただきます。情報が不足している場合や、事実確認ができない場合などは対応できない場合がございます。
間違いを報告する(株)サザンアイランドコンサル
| 住所 | 沖縄県那覇市山下町 11-1 101 地図 |
|---|---|
| 営業時間 | 09:00〜18:00 ・ご案内時間に関してはご相談ください。 |
| 定休日 | 定休日はありません、年末年始はお休みをいただいております。 |
| 免許 | 沖縄県知事免許(4)第3765号 |
































