沖縄屈指のリゾートエリア・恩納村に位置し、オーシャンビューという希少性の高い物件です。
近隣ビーチまで徒歩圏内という立地は、恩納村内でも限られた環境。周辺には高級リゾートホテルや宿泊施設が立ち並び、エリアとしての資産価値が安定しています。
夏の避暑地としてセカンドハウスとしての自己使用に最適。将来的な移住拠点や、家族への資産継承も見据えた活用が可能です。
物件情報
| 価格 | 4,300万円 | 階数 | 3階建て |
|---|---|---|---|
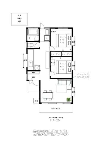
| 間取り | 2LDK ( 洋6 洋6.5 LDK16.5 ※2階部分→2LDK、3階増築により1ルーム(浴室、簡易キッチンあり)) | ||
| 建物面積 | 115.9m² / 35.05坪 | 土地面積 | 221.3m² / 66.94坪 |
| 私道負担 | - | 築年月 | 2002年03月(築24年) |
| 駐車場 | 1台 •2台目 並列 軽 | 地目 | 宅地 |
| 引き渡し | 相談 | 接道方向 / 道路幅員 | - |
| 土地権利 | 所有 | 都市計画 | 都市計画区域外 |
| 用途地域 | 無指定 | 建物構造 | CB(コンクリート・ブロック造) |
| 取引態様 | 一般媒介 | 所在地 | 恩納村名嘉真 地図 |
| 建ぺい率 / 容積率 | - / - | 交通 | 【バス停】伊武部希望ヶ丘入口: 徒歩約15分 |
| 価格備考 | 家具家電込み | ||
| 更新日 | 2026/04/22 | 公開期限 | 2026/05/05 |
この物件の設備・条件
| キッチン | 給湯 、 ガスコンロ |
|---|---|
| バス・トイレ | 浴槽 、 浴室乾燥機 |
| 家具・家電 | 冷房 、 洗濯機 、 乾燥機 、 冷蔵庫 、 家具/家電付き |
| 室内設備 | 室内洗濯機置き場 |
| 立地・土地特徴 | 高台に立地 |
| 建物設備 | プロパンガス 、 オール洋間 |
| その他条件 | 日当たり良し 、 眺望良し 、 静かな場所 |
| リフォーム・リノベーション | 水回り設備交換(キッチン・浴室・洗面・トイレ) 、 リフォーム済 |
物件備考
| 備考 | 2階は2LDKの独立した建物。3階には増築した独立したワンルームあり。3階へは外階段でアクセスするので、2階への出入りの必要なし。 れぞれが完全に独立しており、それぞれにバスルームとキッチン完備。洗濯機・乾燥機も2Fと3Fそれぞれに設置あり。 3F部分および2F部分にそれぞれに広々としてバルコニースペースあり。 1Fは駐車場スペースとなっており、2台までは駐車可。 沖縄を第二の拠点としてお考えの方にぴったりの物件。 リタイア後の移住先、テレワーク拠点、二拠点生活の拠点として。人生の様々なステージで活用できる柔軟性があります。「いつか沖縄に住みたい」という夢を、段階的に実現できる足がかりになります。既に住居として整備されているため、購入後すぐに快適に利用できます。家具・設備が揃っており、別荘としての使い勝手が良い状態です。 リノベーションの手間や初期投資を抑えられます。 ■現況: 空き家 |
|---|
【掲載物件について】
・「うちなーらいふ」は、より正確な情報の提供を心がけておりますが、物件情報に誤りがある場合は、ご連絡をお願い致します。
・ご報告いただいた内容につきましては、掲載提供元である不動産会社に直接送信させていただきます。情報が不足している場合や、事実確認ができない場合などは対応できない場合がございます。
・本フォームは物件情報の誤りに関する報告専用です。賃貸・売買に関するお問い合わせには対応しておりませんので、あらかじめご了承ください。
こちらをクリックして物件の間違いを報告する。






























