【3-2区画】庭付き一戸建て3LDK平屋!第三期分譲エリア全43区画!大型ニュータウン分譲地!子育て世帯におすすめ!建物の仕様決めはお客様にて決めて頂けます!屋外設備工事もコミコミ価格!
物件情報
| 価格 | 4,250万円 | 階数 | 1階建て |
|---|---|---|---|
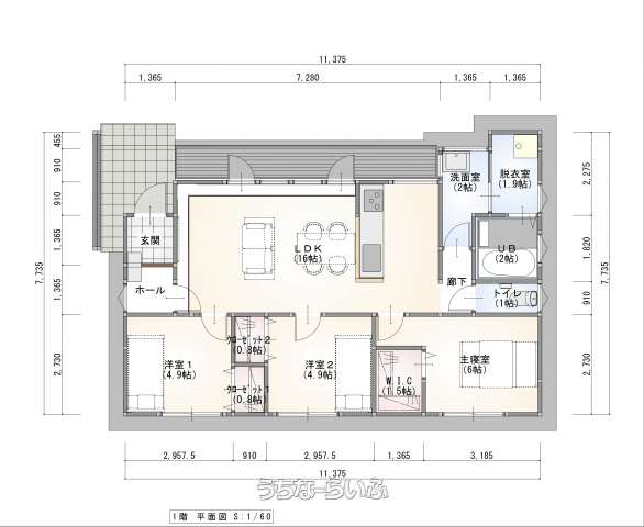
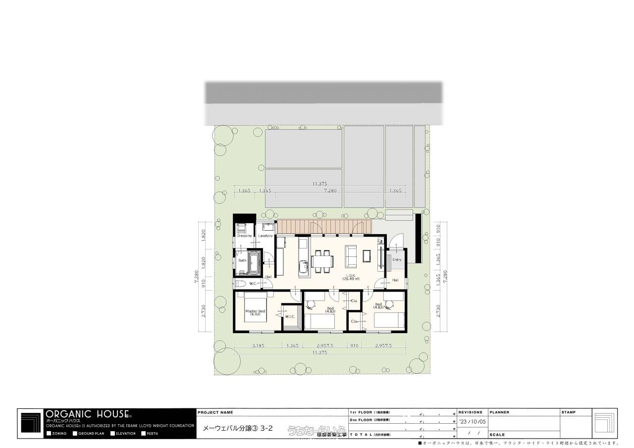
| 間取り | 3LDK ( 洋6 洋4.9 洋4.9 LDK16) | ||
| 建物面積 | 73.7m² / 22.29坪 | 土地面積 | 232m² / 70.17坪 |
| 私道負担 | 無し | 築年月 | 2026年05月(新築) |
| 駐車場 | 1台 | 地目 | 雑種地 |
| 引き渡し | 相談 | 接道方向 / 道路幅員 | 北9m |
| 土地権利 | 所有 | 都市計画 | 非線引 |
| 用途地域 | 未指定 | 建物構造 | 木造 |
| 取引態様 | 売主 | 所在地 | 名護市屋部 地図 |
| 建ぺい率 / 容積率 | 60% / 200% | 交通 | - |
| 価格備考 | 土地・建物本体・外構・屋外設備工事・消費税込みの価格です。 | ||
| 更新日 | 2026/01/23 | 公開期限 | 2026/02/05 |
この物件の設備・条件
| キッチン | ガスコンロ 、 コンロ三口以上 、 対面式キッチン(カウンターキッチン) |
|---|---|
| バス・トイレ | バス/トイレ別 、 ユニットバス 、 浴槽 、 独立洗面所 、 浴室1坪以上 、 温水洗浄便座 |
| セキュリティ | TVホン(TVモニタ付インターホン) 、 ディンプルキー |
| 室内設備 | 室内洗濯機置き場 |
| 収納 | ウォークインクローゼット 、 シューズボックス 、 全居室収納 |
| 立地・土地特徴 | 高台に立地 、 整形地 、 平坦地 、 南向き |
| 建物設備 | 上水道 、 複層ガラス 、 プロパンガス 、 オール洋間 、 庭付き |
| 評価・証明書 | 新築時・増改築時の設計図あり |
| 瑕疵保証あり | 瑕疵保険(国交省指定法人)による保証 |
| その他条件 | 日当たり良し 、 静かな場所 |
| 設備備考 | お客様のご要望に応じて、キッチンなど水回り・設備関係も変更や追加グレードアップなど可能です。(契約後にお客様に仕様決めをして頂き建物工事の着工となります。) |
物件備考
| 備考 | 物件詳細などは直接お問合せください!建物詳細内容含めご説明させて頂きます! 土地・建物本体・外構・屋外設備工事・消費税コミコミ価格!仲介手数料も不要! 現況:工事未着工 ■現況: 未着工 ■建築確認番号: 第R06確認建築沖縄県00075号 |
|---|
【うちなーらいふ】は、より正確な情報の提供を心がけておりますが、物件情報に誤りがある場合は、ご連絡をお願い致します。
ご報告いただいた内容につきましては、掲載提供元である不動産会社に直接送信させていただきます。情報が不足している場合や、事実確認ができない場合などは対応できない場合がございます。
間違いを報告する



















