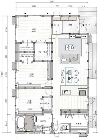
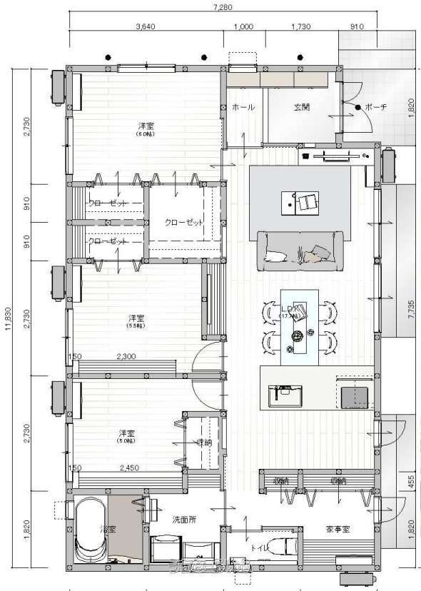
【A棟】新築2月初旬完成予定!人気の平屋戸建て80坪の敷地!駐車場3台可能!防犯カメラ・システムキッチン・浴室乾燥機・ガス衣類乾燥機などの設備も充実しています!玄関収納・ウォークインクローゼットも付いています。家事室もあり便利です。
物件情報
| 価格 | 3,880万円 | 階数 | 1階建て |
|---|---|---|---|
| 間取り | 3LDK ( 洋6 洋5.5 洋5 LDK17.7) | ||
| 建物面積 | 84.46m² / 25.54坪 | 土地面積 | 265m² / 80.16坪 |
| 私道負担 | 無し | 築年月 | 2026年02月(新築) |
| 駐車場 | 3台 | 地目 | 畑 |
| 引き渡し | 相談 | 接道方向 / 道路幅員 | 北4.8m |
| 土地権利 | 所有 | 都市計画 | 非線引 |
| 用途地域 | 未指定 | 建物構造 | 木造 |
| 取引態様 | 売主 | 所在地 | 南城市佐敷字手登根 地図 |
| 建ぺい率 / 容積率 | 60% / 200% | 交通 | 【バス停】第二手登根: 徒歩約10分 |
| 価格備考 | - | ||
| 更新日 | 2025/12/26 | 公開期限 | 2026/01/08 |
この物件の設備・条件
| キッチン | 給湯 、 ガスコンロ 、 コンロ三口以上 、 対面式キッチン(カウンターキッチン) 、 システムキッチン 、 食器洗乾燥機 |
|---|---|
| バス・トイレ | バス/トイレ別 、 ユニットバス 、 浴槽 、 シャンプードレッサー 、 独立洗面所 、 追焚機能 、 浴室乾燥機 、 温水洗浄便座 |
| 家具・家電 | 乾燥機 |
| セキュリティ | TVホン(TVモニタ付インターホン) |
| 室内設備 | 室内洗濯機置き場 |
| 通信設備 | BSアンテナ |
| 収納 | ウォークインクローゼット 、 シューズボックス 、 床下収納 、 全居室収納 |
| 立地・土地特徴 | 平坦地 |
| 建物設備 | 上水道 、 下水道 、 プロパンガス 、 オール洋間 |
物件備考
| 備考 | グーグルマップ表示:南城市佐敷手登根751 ■現況: 建築中 ■建築確認番号: 2024-347 |
|---|
【うちなーらいふ】は、より正確な情報の提供を心がけておりますが、物件情報に誤りがある場合は、ご連絡をお願い致します。
ご報告いただいた内容につきましては、掲載提供元である不動産会社に直接送信させていただきます。情報が不足している場合や、事実確認ができない場合などは対応できない場合がございます。
間違いを報告する





















